Accés al centre pel CURS 2020-2021
Benvolgudes famílies,
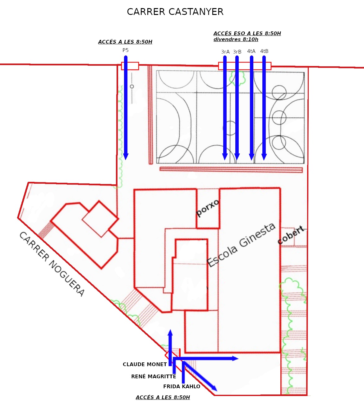
Degut a la COVID-19, l'accés al centre durant aquest curs estarà regulat i restringit estrictament a l'alumnat. D'aquesta manera pretenem reduir al màxim els possibles contagis i poder desenvolupar el curs amb les màximes mesures de seguretat possibles. Es prega a tothom la màxima puntualitat i evitar les aglomeracions a les entrades i sortides del centre.
A continuació podeu veure les distribucions d'accés en tres franges horàries diferents: 8:50h/15:20h, 9:00h/15:30h i 9:10h/15:40h. (FER CLICK SOBRE LES IMATGES PER VEURE-LES EN GRAN).
Els alumnes seran adequadament informats el primer dia per aquelles activitats que requereixin horari diferent.
| Accés 8:50h/15:20h | Accés 9:00h/15:30h | Accés 9:10h/15:40h |
![]() |
![]() |
![]() |
Pla d'organització curs 2020-2021
Benvolgudes famílies de La Ginesta,
L'inici de curs ja és a tocar! Per aquesta raó i amb la idea d'iniciar-lo amb les màximes garanties de seguretat per a tots nosaltres, us volem fer arribar el PLA D'ORGANITZACIÓ 2020-2021 on s'especifiquen totes les mesures i actuacions per a un curs segur.
Per veure i descarregar el document, només heu de clicar sobre la imatge
Per qualsevol qüestió, no dubteu en posar-vos en contacte amb nosaltres.
La Ginesta
Canvi climàtic
Per anar tancant el curs, us volem ensenyar un projecte que han desenvolupat els alumnes de 1r ESO de l'escola.
Ja fa bastants anys que es parla sobre l’escalfament tèrmic que pateix el planeta. Els científics estan estudiant les relacions que existeixen entre l’augment de la concentració de gasos amb efecte hivernacle i l’increment de la temperatura.
Cal canviar hàbits, costums i maneres d’actuar. De quina manera ens afecta a nosaltres? Quin paper tenim en aquest canvi de conductes que pretenen mitigar els efectes del canvi climàtic?
Per aquest motiu els alumnes de 1r eso han treballat sobre el canvi climàtic i han fet un vídeo on es recullen les activitats d'aquest projecte. Fes clic a la imatge per veure'l.
Continguts confinats
Durant aquestes setmanes de confinament, ens hem hagut de quedar a casa i reinventar-nos per poder oferir activitats i continguts als mes petits. El departament d'anglès i música han creat dues pàgines web amb tot d'activitats i continguts per continuar treballant i avançant encara i les dificultats.
Per tal que les podeu continuar utilitzant durant l'estiu, us les compartim a través de la pàgina web:






